
Viager occupé - T2 parking - HYERES CENTRE
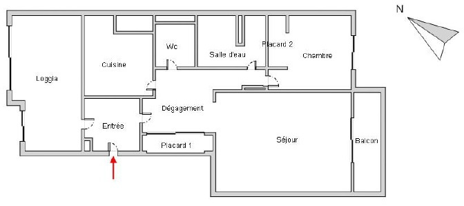
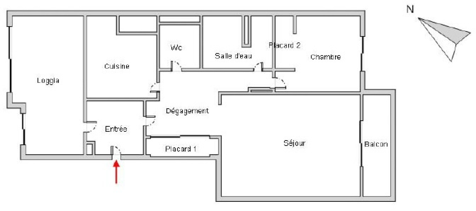
Hyères (83400)VIAGER OCCUPE - A Hyères, quartier Centre, à 2 pas de toutes les commodités, dans une copropriété de 28 lots d'habitation construite en 1976, au 4ème et dernier étage avec ascenseur, un appartement T2 comprenant hall d’entrée, salon, cuisine aménagée, 1 chambre, salle d’eau, wc indépendants, rangements. Le tout en très bon état. Terrasse au Nord de 8,3 m², terrasse au sud de 10 m². Place de parking aérien inclus.
Vous investissez dans un bien où d'Importants travaux ont été votés par la copropriété : ravalement de façades, rénovation toiture, étanchéité parc de stationnement,… qui restent à la charge du vendeur! Ces travaux sont en cours.
Vendu en viager occupé sur 1 tête femme de 76 ans. Valeur vénale : 200.000 €. Bouquet : 52.000 € et rente : 400 €/mois. Espérance de vie statistique : 15,68 ans. Une superbe opportunité avec une décote de 40%. Concernant les charges de copropriété : 579 € sur les 919 € annuels (2024) restent à la charge du vendeur (rapport bailleur / locataire).
Les informations sur les risques auxquels ce bien est exposé sont disponibles sur le site Géorisques
La base légale du traitement repose sur l’intérêt légitime de l'Agence / du Réseau.
Elles sont conservées jusqu'à demande de suppression et sont destinées à l'Agence / au Réseau.
Conformément à la loi « informatique et libertés », vous pouvez exercer votre droit d'accès aux données vous concernant et les faire rectifier en contactant l'Agence / le Réseau.
Si vous estimez, après avoir contacté l'Agence / le Réseau, que vos droits « Informatique et Libertés » ne sont pas respectés, vous pouvez adresser une réclamation à la CNIL.
Nous vous informons de l’existence de la liste d'opposition au démarchage téléphonique « Bloctel », sur laquelle vous pouvez vous inscrire ici : https://www.bloctel.gouv.fr
Dans le cadre de la protection des Données personnelles, nous vous invitons à ne pas inscrire de Données sensibles dans le champ de saisie libre
Ce site est protégé par reCAPTCHA, les Politiques de Confidentialité et les Conditions d'Utilisation de Google s'appliquent.
En Bref
Infos financières
Energie
Détails des diagnostics énergtiques
Montant estimé des dépenses annuelles d'énergie pour un usage standard est compris entre 800 € et 1 110 € . Prix moyens des énergies indexés sur les années 2021, 2022 et 2023 (abonnements compris).
